Pejaten_Barat II

Ars : Ago Architect
Str  : Aji sebagai Junior Engineer
Proyek Pejaten Barat dibangun di atas lahan seluas 529 m².
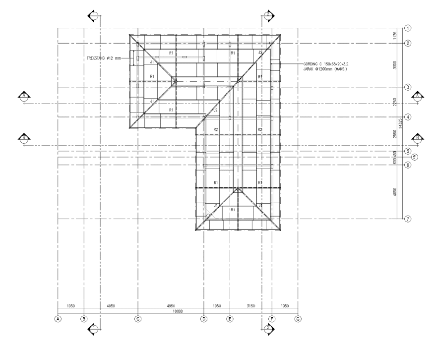
Seluruh elemen struktural dirancang dengan material beton sebagai penopang utama, sementara sistem atap mengadopsi rangka baja konvensional .
image
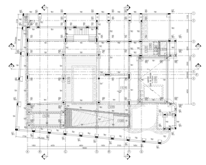
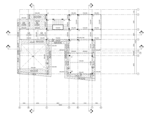
Tantangan pada proyek Pejaten Barat terletak pada posisi balok luar yang lebih mundur dari dinding utama untuk memberi ruang curtain , ditambah adanya kantilever kecil di lantai atas yang digunakan sebagai planter tanaman.
image image
image image
image image
image

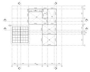
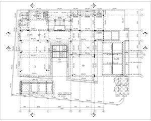
Structural Layout Plans

Dalam proses pengerjaannya, terdapat beberapa perubahan, antara lain kolom komposit yang semula direncanakan menggunakan pondasi pancang diganti menjadi pondasi tapak karena sistem sambungannya tidak memungkinkan, serta perubahan desain balok lantai 2 akibat pelebaran planter tanaman dan penambahan kanopi pada area tengah bangunan.
image
Proyek Tahun 2020 
Junaedi Masiil Associate

Staircase Structural Details

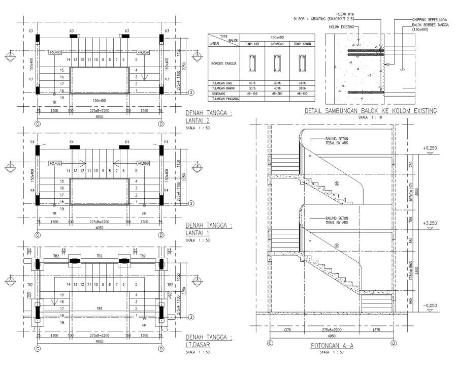
Tangga pada proyek ini menggunakan struktur beton bertulang, dengan desain yang mempertimbangkan kondisi arsitektur di mana pada sisi yang menghadap area outdoor tidak diperkenankan adanya balok karena terdapat jendela full-height.
Mengingat struktur utama bangunan sudah terbangun sebelumnya, diperlukan detail sambungan khusus untuk menghubungkan balok baru pada bordes tangga ke kolom existing.

Structural Modeling & Load Analysis

image
image
image
image