CIKINI_HOUSE

Ars : AYYA Architect
Str  : Aji sebagai Junior Engineer 
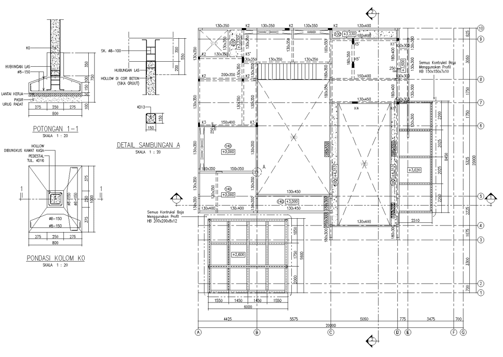
Pada proyek ini beberapa titik diterapkan kolom komposit hollow untuk mengatasi keterbatasan ruang dan memotong bentangan balok, sehingga desain struktur tetap efisien dan optimal.
image
tantangan muncul dari ruang plafon yang terbatas.
Setiap bidang kecil dimanfaatkan secara optimal untuk penempatan kolom, sementara bentang balok dirancang sesingkat mungkin agar ukurannya tetap proporsional.
image image
image
Proyek Tahun 2021 
Junaedi Masiil Associate

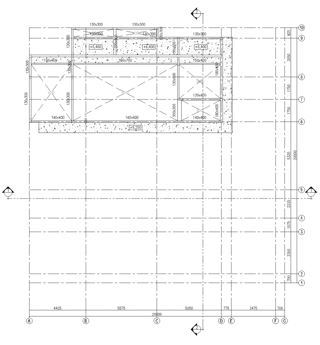
Structural Layout Plans

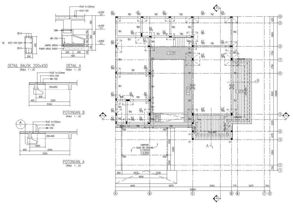
Proyek Cikini House menghadapi tantangan ruang plafon yang terbatas, sehingga balok-balok di lantai 2 dirancang dengan dimensi kecil.
Plat lantai dibuat sesederhana mungkin dan diperkuat dengan tulangan yang lebih besar untuk menjaga kekuatan. Adanya perbedaan level lantai yang cukup mencolok juga mengharuskan beberapa balok dibuat menekuk dengan detail penulangan khusus.
Sementara itu, pada lantai atas hampir seluruh balok diarahkan ke bagian atas untuk mempertahankan kualitas ruang interior.

Structural Modeling & Load Analysis

image
image
image
image